PROYECTOS DE ingeniería industrial en Castellón
Ingeniería Industrial
Actividades y legalizaciones
CERTIFICADO TÉCNICO PARA OBTENER LICENCIA DE ACTIVIDAD DE "ACTIVIDADES DEPORTIVAS" PARA EL VII MARATÓN CS + 10K
Este proyecto tiene por objeto, mediante la descripción de las características fundamentales de la actividad de ACTIVIDADES DEPORTIVAS (instalaciones deportivas, recintos cerrados y descubiertos acondicionados para realizar prácticas deportivas, sin que la asistencia de público sea su finalidad principal), servir de base para que en su realización material, cumpla la normativa vigente y así obtener la resolución favorable y las licencias correspondientes para su legalización.

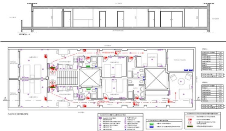
CERTIFICADO TÉCNICO PARA OBTENER LICENCIA DE APERTURA DE LA ACTIVIDAD DE "PENSIÓN", EN CALLE NAVARRA Nº 25 DE CASTELLÓN
Este proyecto tiene por objeto describir las características de la actividad a desarrollar, así como las medidas correctoras que le sean de aplicación, con la finalidad de obtener la oportuna Licencia Municipal en la población de Castellón.

TRAMITACIÓN DE APERTURA DE UN LOCAL DEDICADO A "BAR, CAFETERÍA, HELADERÍA Y COCTELERÍA", SITUADO EN LOS LOCALES 1, 2 Y 3 DE LA PLAZA DEL MAR DEL GRAO DE CASTELLÓN
Este informe tiene por objeto, mediante la descripción de las características fundamentales de la nueva actividad de BAR, CAFETERÍA, HELADERÍA Y COCTELERÍA, servir de base para que cumpla la normativa vigente y así obtener la resolución favorable y las licencias correspondientes, para legalizar la nueva actividad.

Energías renovables
DIRECCIÓN DE OBRA Y COORDINACIÓN DE SEGURIDAD Y SALUD DEL PROYECTO DE INSTALACIÓN DE CALDERA DE BIOMASA, ACOMETIDA EXTERIOR DE BT Y VENTILACIÓN FORZADA DEL EDIFICIO DE VESTUARIOS DE LA PISCINA MUNICIPAL DEL TERMET, VILA-REAL
Se realiza la dirección de obra y la coordinación de seguridad y salud de estas obras que surgen de la necesidad de realizar tres actuaciones destinadas a la mejora del entorno del Ermitorio de la Virgen de Gracia y sus instalaciones: instalación de caldera de biomasa en la piscina municipal, acometida exterior de Baja Tensión y ventilación forzada del edificio de vestuarios de la piscina municipal del Termet.

Eficiencia y control energético
PROYECTO DE INSTALACIÓN DE SISTEMA DE CONTROL Y ECONOMIZADOR DE ENERGÍA EN ALOJAMIENTOS Y RECINTO DEL CAMPING SPA NATURA RESORT, EN PEÑÍSCOLA
Instalación de contadores-analizadores monofásicos en cada uno de los bungalows y parcelas, con capacidad para establecer comunicación con un concentrador (datalogger), para volcar la información a un sistema de facturación en recepción e instalación de los cuadros eléctricos.Instalación de un sistema de acceso mediante cerraduras activables por tarjetas de proximidad, instalación de tarjetero con interruptor de corriente activable mediante la introducción de la tarjeta de cliente. Modificación del cuadro eléctrico para independizar el consumo de la nevera del citado sistema de activación/desactivación del consumo eléctrico citado mediante tarjetero.
Instalaciones eléctricas
PROYECTO Y DIRECCIÓN DE OBRA PARA LA INSALACIÓN DE ALUMBRADO PÚBLICO, EN SUBCUADRO DE A.P. DEL C.T. EXISTENTE EN LA GLORIETA DE LA ESTACIÓN DE SERVICIOS DE BP, EN VILA-REAL
El presente Proyecto, tiene por objeto cubrir la descripción de las características, condiciones legales, técnicas y de seguridad que reunirá la instalación eléctrica en Baja Tensión, destinadas al Alumbrado Público de los viales reflejados en la imagen





